heimaaa is
works
contact
heimaaa is
works
contact
heima.architects.atelier

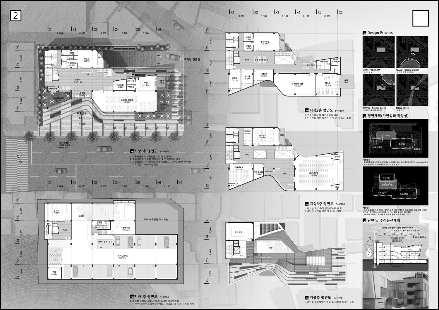
진해서부노인종합복지관 설계공모

2nd Prize_With 주.무위건축사사무소 대지위치 : 경상남도 창원시 진해구 태평동 지역지구 : 제2종 일반주거지역 대지면적 : 1,797.00㎡ 건축면적 : 805.64㎡ 연면적 : 3,144.73㎡ 건축규모 : 지하 1층, 지상3층 용도 : 노유자시설(노인복지관)

You may also like

국립공원공단 동부지역본부청사 신축사업 설계공모
2023
스포츠빌리지 조성사업 설계공모
2023
마산의료원 장례식장_2019 창원 건축대상제 금상
2015
해미국제성지 순례방문자센터 조성사업 설계공모
2024
힐링공원 속 어린이도서관 실시설계
2023
청태산 자연휴양림 방문자안내센터 설계공모
2013
김해시립요양원_2022 김해 건축대상제 장려상
2019
하동 북케이션 관광스테이 확충사업 설계공모
2025
안산종합사회복지관 신축공사 설계공모
2012
상계2동 공공복합청사 신축공사 설계공모
2013
↑Back to Top
Copyright 2012. heimaaa All rights reserved