heimaaa is
works
contact
heimaaa is
works
contact
heima.architects.atelier

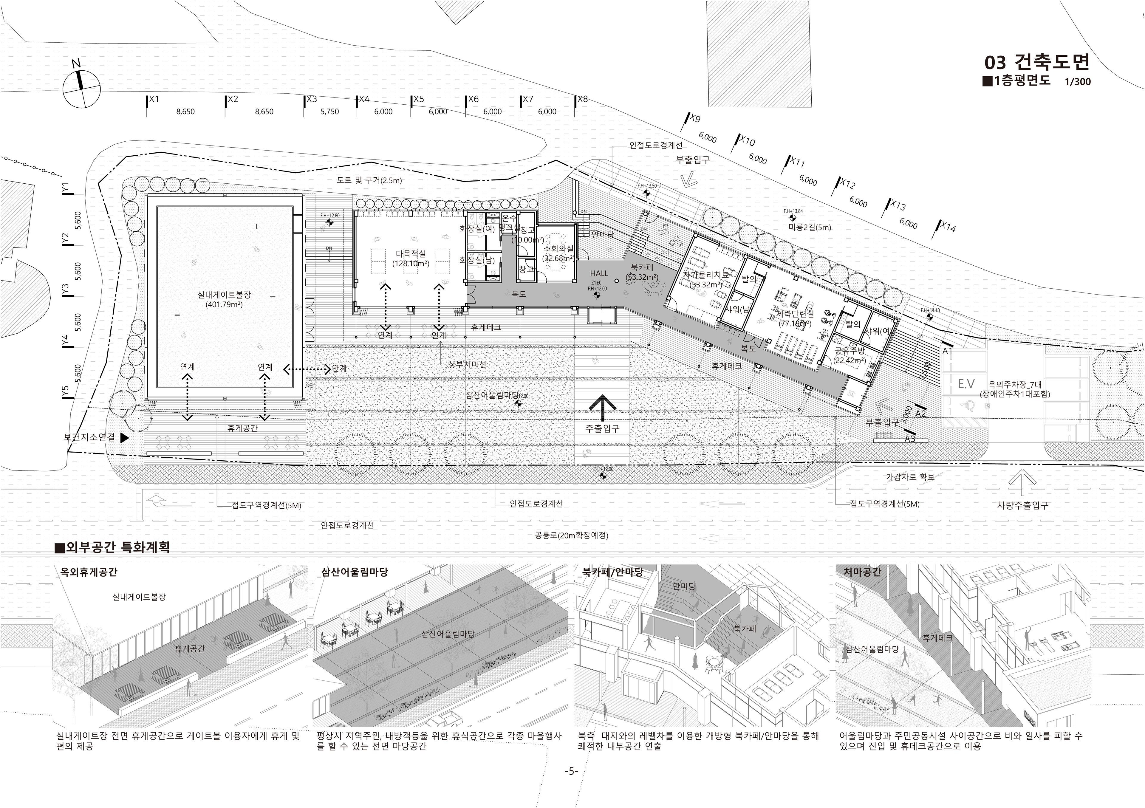
삼산면 주민공동시설 설계공모

2nd Prize with isangwon architects 대지위치 : 경상남도 고성군 대지면적 : 3,404㎡ 건축면적 : 994.21㎡ 연면적 : 994.21㎡ 건축규모 : 지상1층 용도 : 제1종근린생활시설 주요시설 : 주민공동시설

You may also like

북면 감계복지회관 신축공사 설계공모
2017
종로구 실내 놀이복합문화공간 조성사업 설계공모
2025
해미국제성지 순례방문자센터 조성사업 설계공모
2024
김해시립요양원_2022 김해 건축대상제 장려상
2019
왕창리 단독주택 신축공사_양평운정헌
2016
정촌 체육시설 신축공사 설계공모
2025
리빙큐브 6X6 주택공모전
2015
부여도서관 이전.신축공사 설계공모
2024
힐링공원 속 어린이도서관 실시설계
2023
사파동 복합공영주차타워 신축공사
2023
↑Back to Top
Copyright 2012. heimaaa All rights reserved